Sprzedane
Mieszkanie na sprzedaż, Poznań, Stare Miasto
520 000 PLN
11 064 PLN/m2
|
Tomasz Marszałek
nr licencji: 30696 |
| +48 530 133 900 |
| nieruchomosci@alternatywabis.pl |
CHCESZ DOWIEDZIEĆ SIĘ WIĘCEJ?
Opis nieruchomości
Sprzedane
Mam przyjemność zaoferować Państwu na sprzedaż jasne i przytulne 2 pokojowe mieszkanie w idealnej lokalizacji na os. Zwycięstwa na WINOGRADACH .
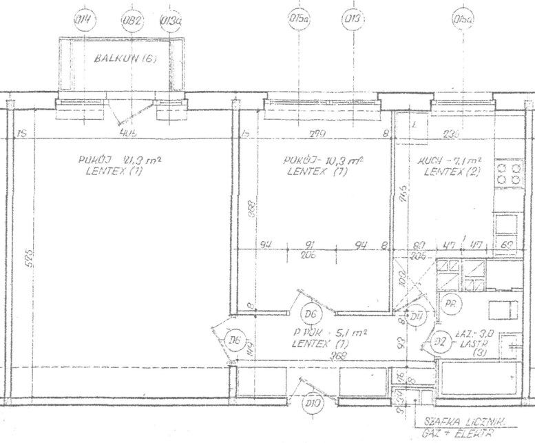
Na powierzchnię 47 m2 składają się:
kuchnia -ok.7,1m2
salon: - ok 21,3 m2
sypialnia - ok. 10,3 m2
korytarz ok. 5.1m2
łazienka z WC - ok. 3m2
Zadbane, jasne i przestronne mieszkanie gotowe do zamieszkania.
Mieszaknie przeszło gruntowny remont w 2010 roku. Układ NIEZALEŻNY. Jasna i przestronna kuchnia w zabudowie meblowej wyposażona w niezbędny sprzęt AGD (płyta gazowa, lodówka, okap). Łazienka w płytkach z prysznicem. Na podłodze położone zostały panele i płytki. Na ścianach gładź. Okna PCV . Instalacja elektryczna miedziana oraz instalacja hydrauliczna wymieniona na nową. Ogrzewanie miejskie.
MIESZKANIE IDEALNIE NADAJE SIĘ RÓWNIEŻ POD INWESTYCJĘ. Lokalizacja bezbłędna ! Na osiedlu szereg punktów handlowo-usługowych oraz placówek oświatowych tj. przedszkole, szkoła podstawowa. Bardzo dobre połączenie komunikacyjne. Przy bloku jest przystanek tramwajowy - PST , a kilkaset metrów dalej przystanek autobusowy.Osiedle pełne zieleni, place zabaw, boiska.
Wystawa okien: wschód. Do mieszkania przynależy piwnica.
Miejsca parkingowe - ogólnodostępne na osiedlu.
Forma własności : Pełna Własność
Administrator budynku: Spółdzielnia Mieszkaniowa `Winogrady`
Cena 520 000zł DO NEGOCJACJI
Zapraszam serdecznie do obejrzenia mieszkania na żywo !
Kontakt: 519 660 355, 530 133 900
ZAPEWNIAMY BEZPŁATNĄ POMOC W UZYSKANIU NAJKORZYSTNIEJSZEGO KREDYTU NA RYNKU.
Powyższy opis ma charakter informacyjny i nie stanowi oferty w rozumieniu KC. Informacje zawarte w ogłoszeniu, zostały sporządzone na podstawie oględzin oraz danych przekazanych przez właściciela i mogą ulec aktualizacji- Nie stanowią oferty określonej w art. 66 i następnych K.C.
Oferta nr 72680179 wysłana z systemu LocumNet Online
Mam przyjemność zaoferować Państwu na sprzedaż jasne i przytulne 2 pokojowe mieszkanie w idealnej lokalizacji na os. Zwycięstwa na WINOGRADACH .
Na powierzchnię 47 m2 składają się:
kuchnia -ok.7,1m2
salon: - ok 21,3 m2
sypialnia - ok. 10,3 m2
korytarz ok. 5.1m2
łazienka z WC - ok. 3m2
Zadbane, jasne i przestronne mieszkanie gotowe do zamieszkania.
Mieszaknie przeszło gruntowny remont w 2010 roku. Układ NIEZALEŻNY. Jasna i przestronna kuchnia w zabudowie meblowej wyposażona w niezbędny sprzęt AGD (płyta gazowa, lodówka, okap). Łazienka w płytkach z prysznicem. Na podłodze położone zostały panele i płytki. Na ścianach gładź. Okna PCV . Instalacja elektryczna miedziana oraz instalacja hydrauliczna wymieniona na nową. Ogrzewanie miejskie.
MIESZKANIE IDEALNIE NADAJE SIĘ RÓWNIEŻ POD INWESTYCJĘ. Lokalizacja bezbłędna ! Na osiedlu szereg punktów handlowo-usługowych oraz placówek oświatowych tj. przedszkole, szkoła podstawowa. Bardzo dobre połączenie komunikacyjne. Przy bloku jest przystanek tramwajowy - PST , a kilkaset metrów dalej przystanek autobusowy.Osiedle pełne zieleni, place zabaw, boiska.
Wystawa okien: wschód. Do mieszkania przynależy piwnica.
Miejsca parkingowe - ogólnodostępne na osiedlu.
Forma własności : Pełna Własność
Administrator budynku: Spółdzielnia Mieszkaniowa `Winogrady`
Cena 520 000zł DO NEGOCJACJI
Zapraszam serdecznie do obejrzenia mieszkania na żywo !
Kontakt: 519 660 355, 530 133 900
ZAPEWNIAMY BEZPŁATNĄ POMOC W UZYSKANIU NAJKORZYSTNIEJSZEGO KREDYTU NA RYNKU.
Powyższy opis ma charakter informacyjny i nie stanowi oferty w rozumieniu KC. Informacje zawarte w ogłoszeniu, zostały sporządzone na podstawie oględzin oraz danych przekazanych przez właściciela i mogą ulec aktualizacji- Nie stanowią oferty określonej w art. 66 i następnych K.C.
Oferta nr 72680179 wysłana z systemu LocumNet Online
Szczegóły oferty
| Numer oferty | 72680179 |
| Typ oferty | Mieszkanie |
| Rodzaj transakcji | Sprzedaż |
| Cena | 520 000 PLN |
| Cena za m2 | 11 064 PLN |
| Liczba pokoi | 2 |
| Piętro | 15 |
| Liczba pięter | 16 |
| Powierzchnia | 47 m2 |
| Miejscowość | Poznań |
| Dzielnica | Stare Miasto |
| Ulica/Osiedle | Os. Zwycięstwa |
| Województwo | WIELKOPOLSKIE |
| Powiat | Poznań m. |
| Gmina | Poznań M. |
| Własność | własność |
| Rok budowy | 1980 |
| Ogrzewanie | co miejskie |
| Balkon | Tak |
| Garaż | wolnostojący |
| Rodzaj okien | nowe plastikowe |
Tomasz Marszałek
Odwiedź nasze biuro i opowiedz nam o Twoich oczekiwaniach!Adres naszego biura
ul. Głogowska 81/7 lokal 2, 60-741 PoznańZadzwoń do nas
Znajdziemy dla Ciebie interesującą ofertę, która będzie dostosowana do Twoich wymagań.CHCESZ DOWIEDZIEĆ SIĘ WIĘCEJ?


















